En el Boletín Oficial de la Provincia del lunes 16 de agosto de 2016, se publica el Anuncio por el que este Ayuntamiento convoca por procedimiento abierto a la oferta más ventajosa, el arrendamiento de Vivienda del Ayuntamiento, para destinarla a vivienda.
A esta vivienda se accede desde la Calle Atayala, número 1.
Toda la información se encuentra a continuación.
Última actualización de la información: 16/08/2016 a las 08:42.
- Anuncio en el Boletín Oficial de la Provincia: http://boletin.dguadalajara.es/images/boletin/2016/08/98_2016-28.html.

- Pliego de condiciones en formato PDF pinchando aquí.
- Consultas:
- 2º y 4º miércoles de cada mes, en la Secretaría, de 17:00 a 20:00 horas (Calle Río Salado 1, Viana de Jadraque).
- Teléfono 949 39 76 49.
- E-mail:
Esta dirección de correo electrónico está siendo protegida contra los robots de spam. Necesita tener JavaScript habilitado para poder verlo.
- Presentación de ofertas: 15 días naturales desde el día siguiente al de publicación del anuncio (contando domingos y festivos).
- Formulario a presentar para dar Registro de entrada: pinchando aquí.
- Formularios de presentación de ofertas (en sobre cerrado): pinchando aquí.
- Apertura de sobres: En acto público. La fecha, hora y lugar se indicará aquí, en www.vianadejadraque.es, Redes Sociales (Twitter y Facebook) y en el Tablón de Anuncios del Ayuntamiento.
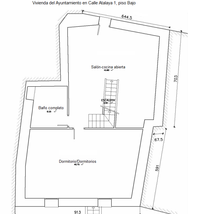
- Descripción de la casa:


- Fotografías:
- Exterior

- Salón-cocina abierta.

- Dormitorio planta baja (con posibilidad de hacer dos dormitorios).

- Baño.

- Escalera.


- Dormitorio primera planta.


- Alcoba.
