En el Boletín Oficial de la Provincia del lunes 6 de junio de 2016, se publica el Anuncio por el que este Ayuntamiento convoca por procedimiento abierto a la oferta más ventajosa, el arrendamiento de la Casa de la Maestra, para destinarla a vivienda.
Esta vivienda está en la calle Monde del Moro número 4, piso 1º.
Toda la información se encuentra a continuación.
Última actualización de la información: 06/06/2016 a las 08:06
- Anuncio en el Boletín Oficial de la Provincia:

- Pliego de condiciones: en formato PDF pinchando aquí.
- Consultas:
- 2º y 4º miércoles de cada mes, en la Secretaría, de 17:00 a 20:00 horas (Calle Río Salado 1, Viana de Jadraque).
- Teléfono 949 39 76 49.
- E-mail:
Esta dirección de correo electrónico está siendo protegida contra los robots de spam. Necesita tener JavaScript habilitado para poder verlo.
- Presentación de ofertas: 15 días naturales desde el día siguiente al de publicación del anuncio (contando domingos y festivos).
- Apertura de sobres: En acto público. La fecha, hora y lugar se indicará aquí, en www.vianadejadraque.es, Redes Sociales (Twitter y Facebook) y en el Tablón de Anuncios del Ayuntamiento.
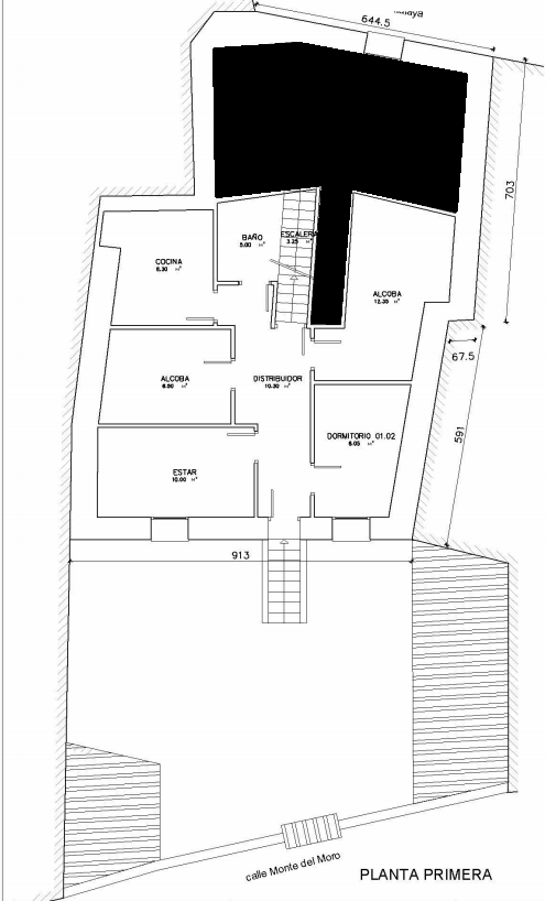
- Descripción de la casa:
- Jardín exterior.
- Trastero.
- Salón.
- Cocina.
- 3 Dormitorios.
- Cámara.
- La casa tiene aproximadamente 75m2 construidos más 60m2 patio más 7m2 de almacén en el patio más la cámara de la casa.
- Últimas reformas:
- Reparación de tejado.
- Llagueado de fachadas.
- Instalación eléctrica nueva.
- Ampliación de dormitorio.
- Dormitorios independientes.
- Se añade un nuevo dormitorio.
- Sustitución de ventanas y puerta de acceso.
- Dotación de agua a la cocina.
- Baño con lavabo, wc y ducha.
- Todas las habitaciones tienen accesos independientes desde el pasillo con su correspondiente puerta (anteriormente para pasar de una habitación a otra había que cruzar otra habitación o el salón).
- Últimas reformas:

- Fotografías:

Fachada a calle Monte del Moro, 4 con vista del patio.

Pasillo

Baño con ducha
Cocina

Nuevo dormitorio
Dormitorio ampliado
Salón

Trastero en el patio